Автоподъемник Sivik ПГА-6500/4 Артикул: ПГА-6500/4
В наличии
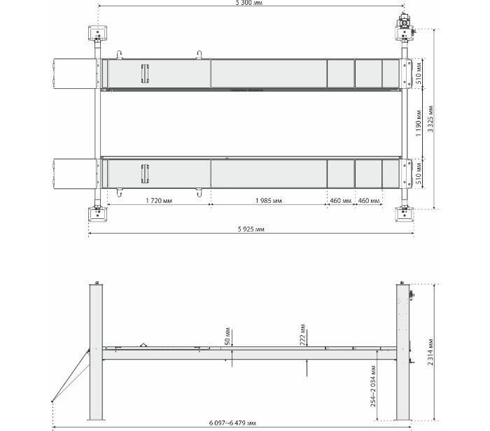
Электрогидравлический четырехстоечный подъёмник грузоподъемностью 5 т для обслуживания легкового транспорта. Оснащение подъемника дает возможность производить регулировку развал/схождения, ремонт тормозной и рулевой систем, и другие работы.
Оплата
- Наличный расчет.
- Безналичный расчет.
- Банковской картой.
Доставка
- Самовывоз до 18:00 (Минский район, Горанский с/с, 33).
- Минск до 1 дня (от 150 р.- Бесплатно).
- РБ до 3 дней (от 300 р.- Бесплатно).
Рассрочка
- Карта Черепаха (рассрочка на 8 мес.).
- Карта Покупок (рассрочка на 4 мес.)
- Лизинг (до 4х лет, от 8%).
Механизм разблокировки с пневматическим приводом;
Система автоматической блокировки кареток с помощью защелок с пневмо-механизмом;
Поворотные круги в комплекте;
Оснащен сдвижными пластинами;
Подходит для регулировки развал/схождения на 3D стенде.

Пневмогидравлическая траверса
Универсальная конструкция, позволяющая осуществлять подхват автомобиля как по принципу ножничного подъемника (через резиновые «бруски»-подставки), так и по принципу двухстоечного подъемника (через круглые регулируемые подхваты)
Тип
Четырёхстоечный
Напряжение в сети
нет
Масса, кг
1730
Высота подъема, мм
1850
Время опускания, сек
20
Расстояние между колоннами, мм
2945
Минимальная высота подъема, мм
241
Питание, Гц / Ф
50 / 3
Общая ширина, мм
3730
Общая высота, мм
2254
Мощность двигателя, кВт
3
Вес брутто, кг
2369
Место установки
закрытое помещение
Высота подъема траверсы, мм
330
Время подъема, сек
66
Грузоподъемность, т
6,5
Гарантия
2 года
Импортер
54 мм
Производитель
ООО НПО «Компания СИВИК» Россия, г.Омск, 644076, пр.Космический, 109
Посмотрите также